欢迎访问浩爽制冷 官方 17年经验冷链工程服务商,专注提供冷库设计、建造、安装、维保及冷链园区规划等一站式解决方案
智慧冷链方案全过程服务商

筹建于2007年,成立于2009年,

深耕冷链17年
全国免费热线: 400-861-7579
智慧冷链方案全过程服务商
浩爽制冷精耕冷链工程案例项目3500+,提供冷库设计,冷库安装,冷库建造,冷库规划设计,策划咨询,招商运营,运维管理

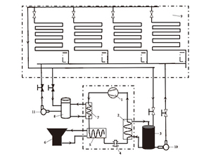
冷库项目生产工艺优化

>
<
       冷库生产工艺优化是指对冷库的生产工艺进行改进和优化,以提高其效率和质量。冷库是用于储存冷藏或冷冻食品、饮料等物品的仓库,而冷库生产工艺则包括了冷库建造、设备安装、温度控制、以及货物储存管理等方面。因此,冷库生产工艺优化可以涉及到多个方面,例如:
 
  设备和材料的选择:选用合适的冷库设备和材料可以有效提高冷库的效率和维护成本。
 
  温度控制:定期检查和调整冷库内部温度、湿度等参数,确保储存物品的品质和安全。
 
  货物储存管理:优化货物摆放和布局,以便于工人操作和减少损失。
 
  能耗控制:采用节能措施,如合理使用保温材料、减少裂缝等,以降低冷库的运行成本和环境影响。
冷库规划设计工艺冷库设计安装工艺冷库生产工艺优化
  所以,通过冷库生产工艺优化可以提高冷库运行效率和质量,减少能源消耗和运营成本,同时确?;跷锲分屎桶踩@淇夤こ坦ひ沼呕蟾欧治礁龇矫妫阂皇抢淇饨ㄔ旃ひ沼呕?,二是冷库使用管理优化,目的就是为了从根本上实现冷库高效节能运转,延长使用寿命,降低生产成本,节约维修费用,提高经济效益。
 
  冷库建造工艺优化具体包含以下几个方面:
 
  1、冷库照明优化:冷库照明应在安全、科学、合理的基础上,从节能环保的角度考虑冷库间的面积、高度和仓库温度。工作区域照明一般集中在工作区域。在保证操作人员安全的同时,应及时关灯,以减少仓库的热负荷和电能消耗。同时,应尽量使用高效、低耗、耐压的照明灯具,以减少灯具的更换频率。LED照明系统具有环保、省电、照明均匀、低温发光效率好、供电效率高的优点。它是一种很有前途的新光源,也是未来冷库照明系统的发展方向。
 
  2、冷库节能优化:合理确定冷库控制温度的设计,降低回风温差。计算表明冷库温度为-30℃提高到-25℃可节省9.8%的电能。根据估计,当蒸发温度每降低1时,将制冷剂蒸发温度与冷库温度之间的温差降低℃,多耗电3%~4%。此外,降低温差将显著降低仓库储存食品的干耗。多个冷库配置制冷设备时,建议采用分散式制冷系统,无需机房集中供冷。这有利于提高制冷设备的制冷效率,提高负荷调节的准确性,提高系统的可靠性。使系统节能15%~20%。冷量配置合理,压缩机制冷量与冷库实耗冷量配合合理。冷库消耗冷负荷计算负荷后,不要盲目增加保险系数,增加设备功率和制冷量。在低温冷藏中设计封闭的低温平台或缓冲室,既能降低冷藏温度波动,又能达到节能效果。
 
  3、冷库除霜优化:推荐冷库设计采用热气除霜,热气除霜温度均匀性好,除霜速度快,能耗低。同时注意除霜控制,及时除霜,避免过厚的霜层影响制冷效率。在控制方面,自动化程度高的控制系统可以达到很好的节能效果。据相关资料统计,自动控制与手动控制相比节能10%~15%。
 
  4、地坪保温优化:小型冷库的地面保温的做法比较简单,因为小型冷库对于冷库物品的承重没有特殊的要求,通常采用跟墙面保温相同的聚氨酯冷库板,也就是我们常说的六面体保温(顶部+底部+四周墙面)。如果贮藏的物品较重时,我们可以采用在聚氨酯冷库板上铺设压花铝板等,防止货物超重导致地面聚氨酯冷库板的损坏。
 
  中型冷库的地面保温的做法相对于小型冷库稍微要复杂一点,目前较好的做法是:采用XPS挤塑板铺设地面,在挤塑板的上面和下面分别铺设防潮隔汽SPS材料,再浇筑混凝土或者钢筋混凝土。大型冷库的地面保温环节要更多一点。由于面积较大,通常需要铺设通风管道防止地面冻鼓破裂。再铺设XPS挤塑板,通常低温冷库需要铺设150mm~200mm厚的XPS挤塑板,而高温冷库铺设100mm~150mm厚的XPS挤塑板,铺设挤塑板时需要错开铺设。大型冷库需要做好防潮隔汽层,与中型冷库相同,铺设在挤塑板的上下两面。做好这些再浇筑钢筋混凝土,一般至少15cm厚。再根据要求做好金刚砂地坪或者环氧地坪。通常低温冷库建议做金刚砂地坪。
 
  5、制冷方式优化:过去市场上的冷库建设大多采用氨制冷或氟制冷,但随着双碳政策的实施,绿色低碳产业的发展,以及制冷技术研究的巨大进步,未来二氧化碳制冷将逐步取代氟制冷,成为冷链项目中的主流制冷方式。建立健全绿色低碳循环发展经济体系,实现碳峰值和碳中和目标,推动绿色发展迈上新台阶。
冷库工程完工图片冷库工程生产工艺优化展示冷库生产工艺图片
  冷库管理工艺优化包含以下几方面:
 
  一、冷库门要关闭严防止跑冷
 
  冷库门是冷库的关键部位,人员进出,货物进出,甚至空气的交换,都要经过它,所以冷库门也是管理的主要部分。
 
  热空气通过仓门的开口渗透进仓内,不仅造成仓内热量和温度的升高,还会造成大量的热湿交换,使冷风器或蒸发器排气管结霜,导致仓内温湿度波动,影响产品的储存质量。降低仓门制冷消耗应从以下几个方面入手:
 
  1.有效维护冷库门,确保其开合无故障,定期检查密封条和电热丝的性能,随时处理冰、霜、水,保持冷库门的密封性,防止叉车在进出仓库时与冷库门发生碰撞。
 
  2、尽量减少开门次数和开门时间,做到进出门。
 
  3.在进出仓库过程中,应及时开启气幕,隔离热空气,进出仓库完成后应立即关闭。
 
  二、冷库照明控制与管理。
 
  冷库照明,不仅消耗能源,还增加了冷库的热量,因此,工作人员进入冷库后应做到关灯,节能降耗。
 
  三,尽量减少进入冷库的人员数量和在冷库的时间。
 
  工作人员在冷库工作时,会不断释放热量,使热负荷增加,因此,应尽量减少操作人员在冷库的数量和操作时间,不能在冷库操作的尽量不在冷库。
 
  四、合理堆放,提高仓库利用率。
 
  冷库利用率直接影响冷库的经济效益,利用率低,相对单位重量货物消耗增加,而干耗增加,成本增加,因此应采用坚固的包装、货架,尽量高码,提高冷库利用率,但要留出空间供冷库内空气正常流通;当货物不满意时,如果货物的储存特性相同或相似,且互不影响,则可以短时间混合。
 
  五、冷库在淡季的使用
 
  在淡季入库时,会有部分免费入库的货物,有时每个冷库入库货物不同,对温度的要求也不一致,如果闲置冷库与入库货物相邻,或者相邻两个冷库入库产品温度不同,温差较大,会相互影响,温度难以保证,进而影响入库质量。应尽量使温度相同的货物进行集中存储,存储货物较少的冷库机组关闭,集中在相邻冷库存储,统一管理以降低能耗,提高效率。
 
  六、在制冷系统的实际运行中,由于工况不断变化,制冷系统只有依靠冷库管理人员的精心操作,准确调整制冷设备的运行,才能始终处于理想的工作状态,达到高效节能的效果。
 
  七、合理启动,降低压缩机功耗。对于手动启动的冷库设备,改造控制系统,实现自动节能控制。对于大容量冷库,当货物储存较少、负荷较低时,应及时调整仓库,并将库存集中到小容量冷库。
 
  八、定期清除冷凝器污垢,避免冷凝温度升高。据统计,水冷凝器水侧表面1.5mm厚水垢会导致冷凝温度升高约2.80℃,将制冷装置的功耗增加9%~10%。
 
  九、实行大、中、小的维护制度。一般压缩机根据使用情况运行1万台h后应大修,5000h应中修,1000h应小修。
 
  十、加强冷库门的维护,有效维护冷库门,确保冷库门的密封。尽量减少开门时间和次数,增加PVC软窗帘或高效空气幕。
 
  十一、注意保持保温材料的冷藏保温效果。更换失去保温效果的保温材料时,应同时检查防潮材料。如果防潮材料老化导致保温材料失效,应同时更换防潮材料。
 
  十二、根据季节或天气变化及时调整化霜参数控制,提高制冷效率,降低化霜能耗。
 
  十三、注意冷库空间利用和货物放置的合理分配,方便库存和提货,有效缩短仓储运行时间,减少仓储进出带来的制冷负荷。
 
  为了优化冷库的生产工艺,以下是一些可能有帮助的建议:
 
  1.设定合适的温度和湿度。根据存储商品的不同要求,设定合适的温度和湿度以确保商品的质量和保质期。同时需要监测和记录这些参数来控制和调整它们。
 
  2.使用高效的维护设备。冷库的维护设备在保持恒温的同时也需要高效节能。选择品质比较好的设备可以使得维护更加顺手并且只需要进行周期性的检查和保养就可以了。
 
  3.实施清洁卫生标准:每天对冷库进行定期的清洁和消毒以防止菌群滋生。此外,在进出冷库之前要求员工按照特定的流程接受培训,并灵活应对因此而引起的物流压力。
 
  4.优化产品摆放位置:不同类型的商品有不同的保存要求。为了保证效率,将货物单独管立、分类放置可以提高管理效率和降低混淆风险。
 
  5.清晰完善的记录系统:储存所有出入库生产订单,记录的信息涵盖仓库地图,盘点历史以及库存动态等方面。使得入库和检查成为例行程序,通过合适的记录机制显着减小产生延误的可能性。
 
  6.采用有效的技术和软件:自动化管理系统可以有效地跟踪库存、温度和湿度的变化,规范人员操作和决策过程。


本文关键词:冷库,规划,设计,建造,安装,运维,招商

阅读次数 578
400-861-7579